предназначен для получения насыщенного пара температурой не более 115 °С и давлением не более 0,07 (0,7) МПа (кгс/cм²) на технологические процессы в животноводстве, птицеводстве (тепловая обработка кормов, пастеризация молока и т. п.) и для других тепловых нужд в хозяйстве. Их используют также строительные организации, воинские части, мясокомбинаты, консервные заводы, автоколонны, ДСУ, хлебозаводы, мелькомбинаты, маслосырзаводы, птицефабрики, свинокомплексы, в нефтегазовой промышленности.
Паропроизводительность паровых котлов КП 1200 - 1200 кг/ч, мощность 0,9 МВт.
Котлы паровые КП 1200 не подлежат обязательной регистрации в органах Госгортехнадзора, могут работать как в паровом, так и в водогрейном режиме.
Наш котельный завод также производит паровые котлы производительностью 1200 кг/ч с другими давлениями и температурой.
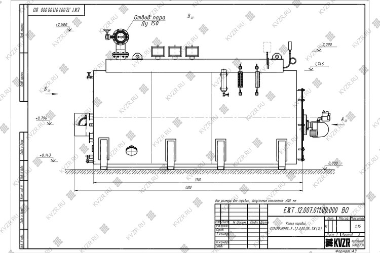
Котел паровой на мазуте КП 1200 представляет собой одножаровую горизонтальную конструкцию и состоят из двух цилиндров разного диаметра, вставленных один в другой и соединенных между собой фланцами и паросборником. Цилиндры изготовлены из листовой стали, диаметр внутреннего равен 1380 мм, а наружного 1920 мм. В передней части жаровой трубы размещена топка, а в задней части - конвективный пучок труб.
К фронтовой стороне парового котла КП 1200 крепится фронтовая плита, имеющая крепление для установки мазутной горелки. Для управления и защиты парового котла и вспомогательного оборудования предусмотрены автоматизация парового котла - пульт управления и контрольно-измерительные приборы, сигнализирующие об отклонении регулируемых параметров котлоагрегата и его неисправности. Физический принцип действия парового котла КП основан на сжигании топлива в топке котла и дальнейшая передача тепловой энергии сгоревшего топлива при помощи теплообменника теплоносителю. Удаление продуктов сгорания происходит через сборную дымовую трубу.
В принцип работы паровых жаротрубных котлов на мазуте КП 1200 положен теплообмен между дымовыми газами и водой. Топливо сгорает в топочной части котла, окруженной водяной охлаждаемой рубашкой. Дымовые газы проходят через трубный пучок и выходят в верхней части котла.
Трубный пучок соединяет верхнюю и нижнюю часть водяной рубашки котла, пар образуется при испарении нагреваемой воды и собирается в верхней части котла, над которой выполнена паросборная камера, далее через паропровод направляется потребителю на технологические нужды.
Паровые жаротрубные котлы на мазуте КП 1200 комплектуются манометром, водомерной колонкой с водомерным стеклом, двумя предохранительными клапанами, паровыми и продувочными вентилями, дымовой трубой.
Паровой котел КП 1200 работает с импортной горелкой фирмы UNIGAS на мазуте - модели PN 60; PN 70; PN 80. В состав автоматизированной горелки входит устройство автоматического контроля пламени, устройство и механизм модулируемого регулирования мощности горелки. Стоимость горелки не включена в стоимость парового котла на мазут КП 1200.
Паровой котел на мазуте КП 1200 поставляется блоками максимальной заводской готовности. Котельный блок устанавливается в котельной на специально подготовленную ровную поверхность. Котел подсоединяется по воде, устанавливается запорная арматура на подводящем трубопроводе и отводящем паропроводе, устанавливаются предохранительные клапаны и контрольно измерительные приборы.
В газовых паровых котлах на фронтовую плиту крепится горелка, подключаемая к топливопроводу. Монтируется газоход. Подключается котельная автоматика.
Для перевода парового котла КП 1200 в водогрейный режим достаточно изменить схему подключения котла.
Для того чтобы купить котел паровой на мазуте КП 1200, вы можете оформить заявку в отделе сбыта по телефону (38-52) 29-97-41 (42) либо оформить заявку онлайн. Наши менеджеры дадут консультацию по подбору вспомогательного оборудования для выбранной вами модели и рассчитают стоимость доставки до вашего региона и населенного пункта. Также предлагаем вам выполнить проект реконструкции паровой котельной.
Цена парового котла КП 1200 на мазуте включает в себя автоматику, запорную арматуру и КИП в пределах котла, предохранительные клапаны. Ниже приведена подробная информация.
Для эффективной и надежной работы парового котла КП 1200 на мазуте вам потребуется дополнительное оборудование - автоматика, горелка и 2 насоса (один рабочий, второй резервный). Мы предлагаем рассмотреть типовые варианты комплектации.
По необходимости устанавливается водоподготовительное оборудование. Водоподготовка выбирается на основании анализа воды.
Типовую схему монтажа и обвязки котла вы можете посмотреть во вкладке схемы подключения.
Автоматика выполняет следующие функции:
Жаротрубный мазутный паровой котел 1200 кг / 1.2 т пара -115 °С -0,07 МПа / 0,7 кгс/cм², предназначен для получения насыщенного пара температурой не более 115 °С и давлением не более 0,07 (0,7) МПа (кгс/cм²) для технологических целей в производстве. Устанавливается в производственных и промышленных котельных.
 
Для правильного подключения парового котла КП 1200 на мазуте в котельной необходимо оставить проемы для обслуживания оборудования во время эксплуатации. Эти расстояния рекомендованы СНИП II-35-76. На данной схеме представлены их размеры. Кроме того мы составили примерный план, как можно произвести расположение подключение оборудования, а также указали перечень минимально необходимого вспомогательного оборудования для работы котла.
К вспомогательному оборудованию при работе парового котла КП 1200 на мазуте относятся:
Водоподготовительная установка подбирается на основе данных химического анализа воды, проводимого специализированной лабораторией.
 
При работе котла питание водой парового котла КП 1200 на мазуте производится через штуцер.
Подпитка котла ведется из питательного бака через насос, соединительную арматуру. На трубопроводе подпитки котла водой должно быть установлено запорное устройство и обратный клапан. Запорное устройство должно располагаться между котлом и обратным клапаном.
Для подпитки устанавливается не менее двух насосов с электроприводом. На стороне нагнетания каждого центробежного насоса до запорного органа должен быть установлен обратный клапан.
На трубопроводе выдачи пара, в непосредственной близости от котла, устанавливается запорное устройство.
На котле имеются продувочные штуцера Ду25, Ду15 и Ду10. Штуцер Ду25 предназначен для удаления шлама, образующегося в результате работы котла, периодической продувки котловой воды и для спуска воды в случае необходимости. Штуцер Ду15 предназначен для продувки водомерной колонки. Штуцера Ду10 предназначены для продувки указателей уровня.
В передней части жаровой трубы в верхней части установлена легкоплавкая пробка – предохранительное устройство прямого действия.
На боковой части корпуса устанавливается датчик уровней воды, связанный с паровым и водным пространством котла соединительными трубками не менее Ду25.
На боковой части корпуса устанавливается соединительная труба (колонка), служащая для установки двух указателей уровня, и связанная с паровым и водным пространством котла соединительными трубками не менее Ду25.
На боковой части корпуса внизу у котла имеется ревизия с крышкой, для периодического осмотра состояния поверхностей нагрева со стороны водяного объема.
 
В передней части жаровой трубы размещена топка, а в задней части - конвективный пучок труб.
В верхней части котла приварен паросборник, представляющий собой полуцилиндр. На паросборной камере устанавливаются предохранительные клапаны и два штуцера Ду15, один для установки электроконтактного манометра, второй для спуска воздуха с котла при заполнении водой при подготовке к работе.
К фронтовой плите котла крепится дизельная горелка для подачи топлива в топку котла через амбразуру.
На задней крышке в основании дымовой трубы выполнен предохранительный взрывной клапан.
Образующиеся в топочной камере продукты сгорания проходят конвективный пучок труб и выводятся через трубу дымовую, установленную на корпусе в хвостовой части котла.
 
Предохранительные клапаны предназначены для стравливания давления в котле при превышении допустимого значения. На котле установлено самопритирающиеся предохранительных клапана пропускной способностью не менее часовой производительности котле.
Принцип работы клапана состоит в том, что при достижении паром номинального давления избыток пара выходит наружу. Клапана оборудованы ручным приводом для открывания при проверке их на срабатывание.
Щит управления совместно с электрооборудованием предназначен для управления работой парового котла КП 1200 на мазуте и защиты его при возникновении аварийных ситуаций. На двери щита расположены сигнальная лампа и органы управления работой котла, с табличками, указывающими их назначение. По месту либо на стенке щита крепится сигнальная сирена.
На паросборной камере устанавливается один электроконтактный манометр. При монтаже манометра, показывающего давление пара в котле, должна быть предусмотрена установка трехходового крана между манометром и сифонным устройством. Допускается установка других устройств, позволяющих контролировать показания рабочего манометра, путем подключения в систему контрольного манометра. Электроконтактный манометр выполняет роль датчика давления и предназначен для отключения дутьевого вентилятора и включения аварийной сигнализации при достижении паром предельно допустимого давления.
Датчик уровней служит для подачи команды на включение и отключение питательного насоса котла в процессе работы.
Указатель уровня воды предназначен для визуального контроля за уровнем воды при работе котла. На корпусе указателя крепится рамка или наносятся метки, указывающие верхний и нижний уровень воды.
Легкоплавкая пробка предназначена для сброса пара во внутренний объем топочной камеры в случае упуска воды ниже аварийного уровня и достижения фактического уровня воды на работающем котле ниже верхней кромки жаровой трубы. При этом легкоплавкая пробка перестает охлаждаться котловой водой и нагревается до температуры газов в топочной камере. Из-за нагрева наполнитель легкоплавкой пробки плавится и выдавливается давлением пара в топочную камеру, при этом сбрасывается давление пара и дополнительно гасится пламя.
Гарантийный срок на мазутный паровой котел 1200 кг / 1.2 т пара -115 °С -0,07 МПа / 0,7 кгс/cм² 24 месяца.
 
Отзыва о товаре пока нет, будьте первыми!
Паровые котлы КП предназначены для получения насыщенного пара температурой не более 115 °С. Котельный завод производит котлы паровые мощностью от 300 кг пара в час до 2.5 т пара в час на всех видах топлива, а так же весь перечень сопутствующего котельного оборудования- насосы, автоматику, водоподготовку и прочее. Специалисты нашего завода бесплатно подберут сопутствующее оборудование, а в случае необходимости, выполнят проектирование, монтаж и пуско-наладку котельной установки.
