Водогрейный мазутный котел КВГМ 1.25 МВт гладкотрубной трехходовой конструкции имеет существенные преимущества перед жаротрубными моделями благодаря следующим конструктивным особенностям:
Водогрейные котлы КВГМ 1,25 МВт работающие на мазуте предназначены для получения горячей воды номинальной температурой на выходе из котла 95 (115) °С рабочим давлением до 0,6 (6,0) МПа (кгс/см), используется в системах централизованного теплоснабжения на нужды отопления и горячего водоснабжения. Котел КВГМ 1 25 МВт отопительный предназначен для работы в открытых и закрытых системах теплоснабжения с принудительной циркуляцией воды. Вид сжигаемого топлива: мазут.
Давление газа перед горелкой может быть как среднее, так и низкое.
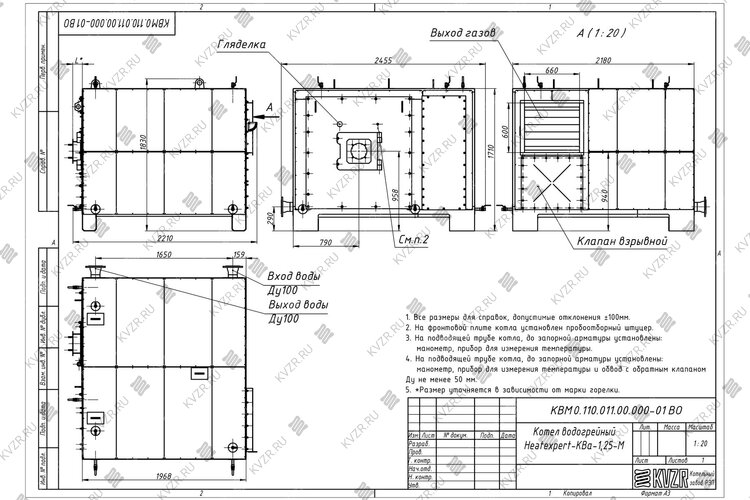
Стальной напольный водогрейный котел КВГМ 1.25 МВт на мазуте имеет газоплотные топочную камеру и конвективную часть. В заднем экране топочной камеры выполнено отверстие, в котором установлен взрывной клапан, предохраняющий конструкцию от разрушения при возникновении избыточного давления в топочной камере.
Промышленный водотрубный мазутный котел отопления КВГМ 1,25 МВт устанавливается на раму. Рама котла выполнена из швеллера и ставится на опоры. Опоры котла крепятся к ровной подготовленной поверхности анкерными болтами. Блок горелки закрепляется на фронтовой плите с помощью болтовых соединений. Фронтовая плита закрепляется при помощи шарниров и выполняет функцию люка, что позволяет осуществлять доступ в топочную камеру котла для осмотра и ремонтных работ без разбора обшивки и изоляции.
Изоляция выполняется из жаростойких материалов и стальных листов.
Выход газов в теплоагрегате происходит сверху. В случае необходимости возможно изготовление опускного газохода.
Применяемые горелочные устройства котла КВГМ 1.25 МВт на мазуте:
Данные типы горелок имеют более широкий угол раскрытия факела, поэтому требуется более широкая топочная часть котла.
Котел работает под наддувом, без дымососа.
Для того чтобы купить мазутный котел КВГМ 1.25 МВт, вы можете сделать заявку в отдел сбыта по телефону (38-52) 29-97-41 (42), либо оформить заявку онлайн. Наши менеджеры дадут консультацию по подбору вспомогательного оборудования для выбранных вами моделей и рассчитают стоимость доставки до вашего региона и населенного пункта.
Котельный завод РЭП осуществляет производство котлов КВГМ 1.25 МВт в г Барнауле по типовым проектам и по техническому заданию, согласованному с заказчиком – производим доработки котла под вашу котельную: зеркальное отображение подвода теплоносителя, изготавливаем опускные газоходы, выполняем амбразуру под вашу модификацию горелочного устройства и подобное.
Российские котлы КВГМ 1.25 МВт изготавливаются по ГОСТ 30735-2001 и имеют сертификат соответствия ТС ТР 010/2011, ТС ТР 016/2011, ТС ТР 032/2013.
Марка КВГМ 1.25 МВт расшифровывается, как котел водогрейный с теплопроизводительностью 1,25 МВт, 1250 КВт под отечественную газомазутную горелку. Также может применяться дополнительная аббревиатура например:
Цена водогрейного котла КВГМ 1.25 МВт мазутного (под отечественную горелку ГМГ) включает в себя запорную арматуру и КИП в пределах котла, вентилятор поддува и предохранительные клапаны. Ниже приведена подробная информация.
Для эффективной и надежной работы котла КВГМ 1.25 МВт мазутного (под отечественную горелку ГМГ) вам потребуется дополнительное оборудование - горелка, автоматика, насос сетевой и подпиточный, газоходы и переходники для газового тракта, дымовая труба. Мы предлагаем рассмотреть типовые варианты комплектации.
В случае если у вас на объекте имеется горелка и насосное оборудование, мы можем проверить совместимость котла КВГМ 1.25 МВт мазутного (под отечественную горелку ГМГ) нашего производства и вашего оборудования.
Можем изготовить нестандартные узлы для выполнения быстрого монтажа котла - газоходы и узлы обвязки.
Типовую схему монтажа котла вы можете посмотреть во вкладке схемы подключения.
Водогрейный стальной отопительный котел КВГМ 1.25 МВт мазутный (под отечественную горелку ГМГ), предназначен для получения горячей воды номинальной температурой на выходе из котла от 95 до 115 °С рабочим давлением до 0,6 (6,0) МПа (кгс/см), используемой в системах централизованного теплоснабжения на нужды отопления, горячего водоснабжения. Устанавливается в производственных, промышленных и отопительных котельных.
Водогрейный котел КВГМ 1.25 МВт мазутный (под отечественную горелку ГМГ) имеет гарантийный срок 24 месяца и срок работы при соблюдении правил монтажа и эксплуатации оборудования 10 лет.
 
 
Отзыва о товаре пока нет, будьте первыми!
Мазутный водогрейный котел 1.25 ( - мощность 1.25 МВт; - топливо мазут; - температура 95 115 градусов; - отапливаемая площадь* от 10400 до 13600 м2; - отапливаемый объем* от 31200 до 40800 м3 (* диапазон для самого холодного и самого теплого региона РФ)); - применение для отопления производства, жилых зданий, цехов, складов, промышленных предприятий, теплиц, гаражей, больниц, школ, садов, для монтажа в модульных котельных.
Подобрать мощность котла по площади важно учитывая не только площадь и объем здания, но и тип зданий и климатические данные региона.
На нашем сайте калькулятор расчета мощности котла учитывает тепло, требуемое на возмещение тепловых потерь через строительные конструкции и потери, вызываемые инфильтрацией (проникновением) наружного воздуха, через их неплотности и периодически открываемые двери.
Наружный строительный объем здания должен определяться умножением площади горизонтального сечения, взятого по внешнему обводу здания на уровне первого этажа на полную высоту здания, измеренную для панельных зданий: от уровня чистого пола (нулевой отметки) до верхней плоскости теплоизоляционного слоя чердачного покрытия, для остальных строений от уровня земли.
Расчетная температура воздуха в отапливаемых зданий принимается в зависимости от типа и назначения здания:
В случае если требуется отопление различных по типу зданий, теплопотребление каждого считается отдельно, полученные значения складываются и подобрать мощность котла нужно в соответствии с общей суммарной мощностью каждого отдельно стоящего задания.
Климатические условия вашего региона принимаются в соответствии с СП 131.13330 Строительная климатология. Данные по всем регионам России занесены в наш калькулятор расчета мощности котла.
Подобрать мощность котла по площади с учетом потребностей объекта в тепле на вентиляцию и горячую воду возможно только с более детальным расчетом. Его вы можете заказать в отделе сбыта котельного завода отправив заявку на электронный адрес sb@kvzr.ru или позвонив по телефонам (38-52) 29-97-41, 29-97-42.
