Тепломеханическая часть котельной

Тепломеханическая часть котельной

К тепломеханической части котельной относятся: теплоэнергетическое оборудование, расположенное внутри котельной; трубопроводы с арматурой (запорной, регулирующей, предохранительной) и контрольно-измерительные приборы.

При ознакомлении с устройством и принципом работы тепломеханической части котельной необходимо пользоваться тепловой схемой.

Несколько примеров готовых решений отопительных котельных.

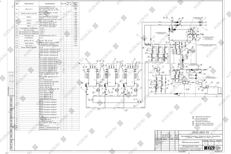
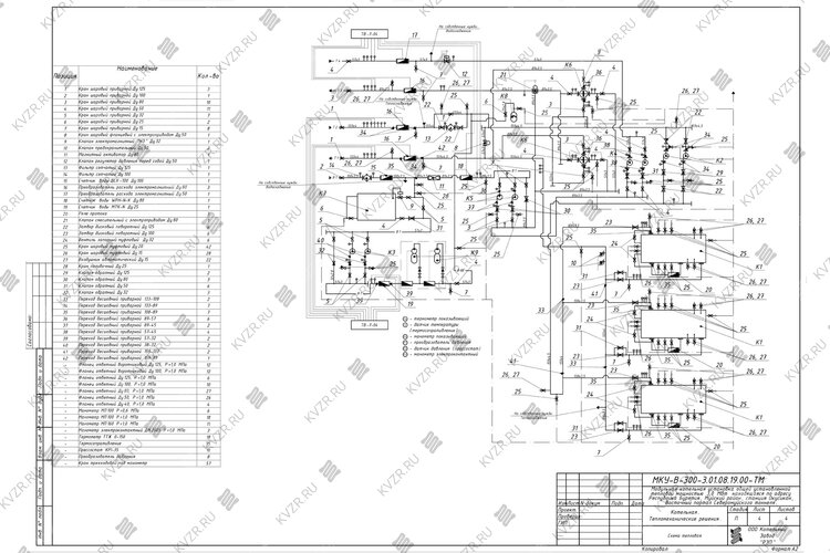
Тепломеханические решения котельной мощностью 1,11 МВт

Котельная предназначена для отопления, вентиляции и горячего водоснабжения средней школы и пристроек, относящихся к ней.

Котельная трехконтурная шеститрубная с тремя независимыми контурами:

  • котловой контур;
  • сеть отопления;
  • сеть горячего водоснабжения (ГВС).

Движение воды в сетевом контуре котельной осуществляется следующим образом:

  • вода сетевая обратная поступает из теплосети по трубопроводу через абонентский грязевик поз.26, фильтр сетчатый поз.24, электромагнитный преобразователь расхода поз.34 и два деаэратора поз.30 на два циркуляционных насоса К3 сетевого контура (один насос резервный);
  • насосами К3 по трубопроводу Т2 вода подается в теплообменники теплосети К8, где нагревается до необходимой температуры;
  • вода по трубопроводу Т1 поступает в теплосеть на отопление;
  • часть воды из трубопровода Т1 отбирается на собственные нужды отопления и теплоснабжения котельной;
  • возврат воды после использования на собственные нужды отопления и теплоснабжения котельной возвращается в трубопровод Т2 перед насосами К3.

Количества тепла, поступающего в теплосеть на отопление, регулируется количественно-качественным методом за счет изменения кочегаром (оператором) уставки температуры измерителя регулятора в соответствии с отопительным графиком и изменения расхода теплоносителя путем автоматического управления работой циркуляционных насосов теплосети с поддержанием постоянной заданной температуры теплоносителя в подающем трубопроводе Т1.

Сетевой контур защищен от недопустимых изменений давления мембранно-предохранительными устройствами К12.

Движение воды в котловом контуре котельной осуществляется следующим образом:

  • вода котловая обратная поступает из двух теплообменников теплосети К8 и двух теплообменников сети ГВС К9 по трубопроводу Т21 на два циркуляционных насоса К4 котлового контура (один насос резервный);
  • насосами К4 по трубопроводу Т21 вода подается в два котла К1 и один котел К2, где нагревается до необходимой температуры;
  • вода по трубопроводу Т11 поступает обратно в два теплообменника теплосети К8 и два теплообменника сети ГВС, где охлаждаясь нагревает воду соответственно контура теплосети и контура ГВС.

Количество тепла поступающего в теплообменники, регулируется количественным методом за счет изменения расхода теплоносителя путем автоматического управлением работой циркуляционных насосов котлового контура с поддержанием постоянной заданной температуры теплоносителя в подающем трубопроводе Т11 перед теплообменниками.

Котловой контур защищен от недопустимых изменений давления мембранно-предохранительными устройствами К11 и двумя предохранительными клапанами поз.22, установленными на общем трубопроводе Т11 за котлами для защиты котлов от превышения в них давления более, чем на 10% рабочего давления (свыше 6,6 кг/см2). На котлах в обход выходной арматуре установлена байпасная линия с обратным клапаном поз.19.

Для регулирования количества теплоносителя поступающего из теплосети по трубопроводу Т11 в теплообменники сети ГВС К9 для нагрева воды контура ГВС и поддержания постоянной температуры воды в подающем трубопроводе ГВС Т3, на трубопроводе Т11 установлен кран шаровый с электроприводом поз.29.

Движение воды в контуре ГВС котельной осуществляется следующим образом:

  • вода обратная из контура ГВС поступает по трубопроводу Т4 через грязевик абонентский поз.27, сетчатый фильтр поз.25 и электромагнитный преобразователь расхода поз.36 на два циркуляционных насоса К6 контура ГВС (один насос резервный);
  • насосами К6 по трубопроводу Т4 вода подается в теплообменники ГВС К9, где нагревается до необходимой температуры;
  • вода по трубопроводу Т3 о теплообменников поступает в контур ГВС потребителю.

Для поддержания постоянного давления в контуре ГВС, на обратном трубопроводе Т4 перед насосами К6 установлен клапан регулятор давления перед собой поз.38.

Часть воды из трубопровода Т4 отбирается на собственные нужды ГВС.

Количество тепла поступающего в сеть ГВС, регулируется количественно-качественным методом за счет изменения расхода теплоносителя путем автоматического управлением работой циркуляционных насосов котлового контура с поддержанием постоянного давления трубопроводе Т3 и поддержанием постоянной температуры в трубопроводе Т3 путем управления подачей греющей воды в теплообменники К9 через кран шаровый с электроприводом поз.29.

Исходная вода из хозяйственно питьевого водопровода В1 по трубопроводу подается в бак запаса воды К10. Из бака запаса вода поступает на подпитку сетевого контура. Повышение давления подпиточной воды осуществляется с помощью двух насосов К5 (один насос резервный).

В подпитывающий трубопровод за насосами К5 подается реагент двумя дозирующими установками К13 для корректировки качества подпиточной и сетевой, и котловой воды. Так же за насосами К5 установлен деаэратор поз.31 для удаления воздуха из подпиточной воды.

Поддержание требуемого давления котловой и сетевой воды осуществляется с помощью двух клапанов регуляторов поз.39, установленных на линиях подпитки соответственно котлового и сетевого контура. Поддержание требуемого давления в подпитывающем трубопроводе путем автоматического управления работой насосов К5. Схемой предусмотрена подпитка котлового и сетевого контура без применения насосов К5 засечет давления воды в исходном трубопроводе В1.

Часть исходной воды по трубопроводу В1 подается на подпитку контура ГВС. Повышение давления подпиточной воды контура ГВС осуществляется с помощью двух насосов К7 (один насос резервный). На подпитывающем трубопроводе перед насосами К5 установлен магнитный активатор поз.23 для магнитной обработки подпиточной воды и деаэратор поз.32 для удаления воздуха.

Часть воды из водопровода В1 отбирается на собственные нужды и подводится к сантехническим приборам, так же из трубопровода В1 производится отбор воды на гидроуборку котельного зала.

Описание и работа составных частей котельной

Дымовые газы от водогрейных котлов с ручными слоевыми топками движутся по дымоходу с шибером в дымовую трубу.

Устройство и описание работы водогрейных котлов с ручными слоевыми топками КВр-0,47 КБ, КВр-0,17КБ и комплектующего оборудования и приборов КИПиА приведены в соответствующих эксплуатационных документах на эти изделия.

Арматура, электрооборудование и электропроводка имеют маркировку, соответствующую условным обозначениям на схемах тепловой, принципиальной и электрической соединений.

Топливоподача

Подвоз топлива на склад котельной осуществляется автотранспортом.

Со склада топлива вручную тачками уголь подается в помещение котельного зала котельной на место временного складирования - на полу перед котлами. С места временного складирования уголь подается вручную в топку котла.

Шлакозолоудаление

Удаление шлака и золы производится вручную с применением ручного инструмента - шуровки. Транспортировка шлака и золы производится вручную тачками на участок временного хранения перед котельной. Вывоз шлака и золы производится автотранспортом на золошлакоотвал для переработки и утилизации в соответствии с договором на утилизацию промышленных отходов.

Водоподготовка

В качестве исходной воды принята вода из хозяйственно питьевого водопровода.

Водоподготовка подпиточной воды производится посредством коррекционной обработки при помощи установок "Комплексон" К13 и деаэраторах, установленных на подпитывающих линиях.

Автоматизация котельной

Настоящим проектом предусматривается оснащение котельной приборами и средствами автоматизации в объеме, достаточном для надежной и безаварийной эксплуатации. Проект выполнен в соответствии со СП 89.13330.2016 «СНиП II-35-76. Котельные установки» и СП 41-104-2000 «Проектирование автономных источников теплоснабжения».

Управление всеми группами насосов осуществляется в автоматическом режиме, дополнительно предусмотрено ручное управление подпиточными насосами теплосети и сети ГВС.

Схемой предусмотрена световая и звуковая сигнализация при повышении или понижении давления в обратном трубопроводе теплосети и аварийного отключения циркуляционных насосов теплосети, сети ГВС, котлового контура, подпиточных насосов теплосети и сети ГВС. Данный контроль осуществляется датчиками давления KPI-35 «Danfoss» и контроллерами САУ-У, ТРМ1, ТРМ500, 2ТРМ1.

Контроль за работой водогрейных котлов с ручными слоевыми топками осуществляется с помощью щитов управления котлами (ЩУКВТ №1, ЩУКВТ №2, ЩУКВТ №3), оснащенными микропроцессорными измерителями-регуляторами температуры ТРМ500.

Схема защиты водогрейных котлов с ручными слоевыми топками предусматривает автоматическое отключение тягодутьевых установок при:

  • при повышении температуры воды на выходе из котла;
  • повышении или понижении давления воды на выходе из котла;
  • уменьшении расхода воды через котел;
  • уменьшении разрежения в топке;
  • неисправности цепей защиты.

При помощи микропроцессорных измерителей-регуляторов температуры ТРМ500 производится контроль работы водогрейных котлов с ручными слоевыми топками, за счет управления работой дутьевого вентилятора, и посредством контроля выходной температуры теплоносителя.

Контроль за давлением в котлах осуществляется электроконтактными манометрами.

В помещении котельной устанавливается сигнализатор СО для контроля уровня концентрации в помещении котельной угарного газа не выше 20 мг/м3.

В котельной на сетевом и подпиточном трубопроводе, трубопроводе ГВС предусмотрена установка узлов контроля расхода, температуры и давления для осуществления учета теплопроизводительности котельной.

Остальные контрольно-измерительные приборы - показывающие.

Электропроводка выполняется кабелями ВВГнг, МКШвнг-LS и МКЭШвнг-LS, прокладываемыми в лотках и стальных трубах.

Заземление металлических корпусов приборов выполняется нулевым защитным проводником электрической сети.

Установка местных приборов и отборных устройств производится по существующим типовым инструкциям и монтажным чертежам.

Тепломеханические решения котельной мощностью 1,26 МВт.

Котельная предназначена для отопления, вентиляции и горячего водоснабжения средней школы и пристроек, относящихся к ней.

В помещении котельной предусмотрено размещение:

  • водогрейный котел КВр-0,63 К (К) – 3 шт. производства Россия фирмы ООО Котельный завод «РЭП»; (в работе-2 шт, в резерве-1шт).

Установленная мощность котельной составляет 1890 кВт (1,63 Гкал/ч).

Расчетная подключаемая тепловая нагрузка котельной составляет 1200 кВт (1,03 Гкал/ч).

Тепловая нагрузка котельной на собственные нужды составляет:

  • на отопление и вентиляцию котельной – 37,91 кВт (0,032 Гкал/ч).
  • на нужды ГВС котельной – 10 кВт (0,009 Гкал/ч).

Тепловая нагрузка на котельную с учетом собственных нужд составляет 1260 кВт. Q=0.89*1260= 1121,4 кВт. При выходе из строя одного из котла, включается резервный котел, и нагрузка в размере 89% обеспечивается.

Водогрейные котлы предназначены для получения горячей воды и выдают теплоноситель температурой до 115°С.

Рабочее давление в системе теплоснабжения - 0,3 МПа (3,0 кгс/см2).

Максимально допустимое давление в системе теплоснабжения– 0,6 МПа. Котельная одноконтурная двухтрубная.

Движение воды в сетевом контуре котельной осуществляется следующим образом:

  • вода сетевая обратная поступает из теплосети по трубопроводу Т2 через преобразователь расхода вихреакустический поз.21, фильтр сетчатый поз.18 на три циркуляционных насоса К2 CDM 32-4 (расход G =32,5 м3/час, напор Н = 53 м.в.ст) (один насос резервный);
  • насосами К2 по трубопроводу Т2 вода подается в котлы К1 (в работе-2 щт, в резерве-1шт) , где нагревается до необходимой температуры;
  • вода по трубопроводу Т1 через преобразователь расхода вихреакустический поз.21 поступает в теплосеть на отопление;
  • часть воды из трубопровода Т1 отбирается на теплообменник К6, где охлаждаясь нагревает воду контура горячего водоснабжения на собственные нужды;
  • возврат воды после теплообменников К6 и использования на собственные нужды отопления и теплоснабжения котельной возвращается в трубопровод Т2 перед насосами К2.

Сетевой контур защищен от недопустимых изменений давления мембранно-предохранительными устройством К8, установленным на всасе насосов К2 и двумя предохранительными клапанами поз.17, установленными на общем трубопроводе Т1 за котлами для защиты котлов от превышения в них давления более, чем на 10% рабочего давления (свыше 6,6 кг/см2). На котлах в обход выходной арматуре установлена байпасная линия с обратным клапаном поз.25.

Обоснование потребности в основных видах ресурсов для технологических нужд - для объектов производственного назначения

Для производства тепловой энергии необходимы:

  • уголь сортомарки Дпко Моховского угольного разреза, расход топлива расчетный, не более:258 кг/ч;
  • вода соответствующая РД 24.031.120-91;
  • электроэнергия.

Описание источников поступления сырья и материалов - для объектов производственного назначения

Вода подается от системы центральнного водопровода. Трубопровод водопроводной воды Т=5 °С, Р=0,12 МПа.

Подвоз топлива в бункер котельной осуществляется автотранспортом.

Для хранения топлива предусмотрен Бункер-накопитель механизированный БН-20 (бункер твердого топлива) – 1 шт производства Россия фирмы ООО Котельный завод «РЭП». Бункер твердого топлива отделен от котельной противопожарной стеной 1-го типа с пределом огнестойкости не менее REI 150. Вместимость бункера топлива объёмом 20м3.

Вентиляция в бункере твердого топлива осуществляется благодаря не плотностям ограждающих конструкций дверных проемов и подвижной крыши.

Из бункера топлива вручную тачками уголь подается в помещение котельного зала котельной на место временного складирования - на полу перед котлами. С места временного складирования уголь подается вручную в топку котла.

Для обеспечения потребителей тепловой энергией в котельной предусмотрены водогрейные котлы КВр-0,63 К (К) – 3 шт (в работе-2 щт, в резерве-1шт), производства Россия фирмы ООО Котельный завод «РЭП».

Для циркуляции теплоносителя (воды) в системе теплоснабжения предусмотрены циркуляционные насосы:

  • CDM 32-4 - 3 шт. (в работе-2, в резерве-1) расходом 32,5 м3/час, напором 53 м.в.ст.

При превышении давления в системе теплоснабжения срабатывают предохранительные клапана. Лишний теплоноситель сбрасывается в производственную канализацию.

Для повышения давления подпиточной воды и восстановления потерь (подпитки) теплоносителя в системе теплоснабжения предусмотрены подпиточных насосы:

  • CDM 15-3 - 2 шт (в работе-1, в резерве-1) расходом 16,0 м3/час, напором 34 м.в.ст.

Для достижения требуемого напора в водопроводе на технологические нужды В1 и водопроводе на хоз- бытовые нужды В1.2 предусмотрены повысительный насосы:

  • CDM 5-5 - 2 шт (в работе-1, в резерве-1) расходом 1,295 м3/час, напором 20,1 м.в.ст.
  • CDM 1-5 - 2 шт (в работе-1, в резерве-1) расходом 0,624 м3/час, напором 15,2 м.в.ст.

Для подготовки горячей воды на собственные нужды предусмотрен пластинчатый теплообменник.

Для сокращения выбросов взвешенных частиц в настоящем проекте предусмотрены 3 золоуловителя К11 ЗУ-0,6. Для сокращения максимальной приземной концентрации вредных выбросов применена высокая дымовая труба позволяющая значительно снизить данные показатели.

В процессе работы котлов на твердом топливе образуются шлак и зола. Шлак накапливается и удаляется из топочного короба котла, зола улавливается золоуловителями, установленными на улице.

Механизированное удаление шлака и золы не предусмотренно, так как в ходе работы общим выходом шлака и золы от котлов менее 150 кг/ч (не более 26 кг/ч).

Удаление шлака из котла производится вручную с применением ручного инструмента – шуровки и лопаты, при выключенном вентиляторе, но включённом дымососе. При помощи лопаты шлак из котла выгружаются непосредственно в тачку и вывозится из котельной на участок временного размещения. Хранение шлака в котельном зале не предусмотрено. Удаление шлака из котла не относится к производственным процессам, связанным с выделением пыли и вредных веществ. Помещения для очистки одежды не требуется.

Транспортировка шлака и золы производится вручную тачками на участок временного размещения восточнее котельной, согласно топографического плана. Складирование для временного хранения золы и шлака предусматривается совместным.

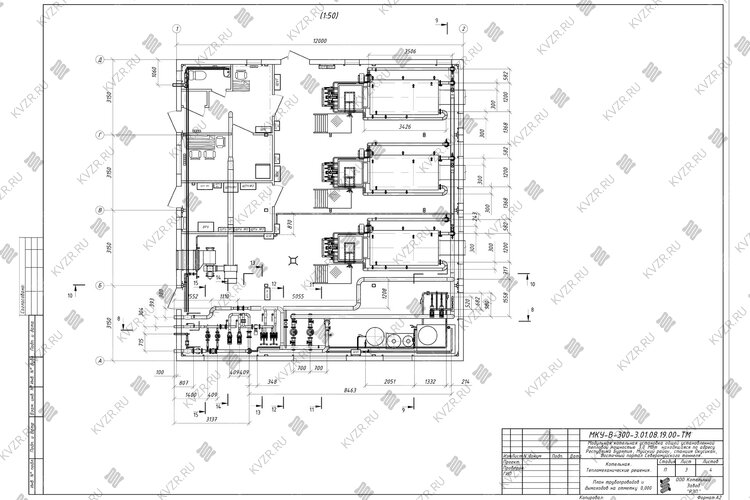
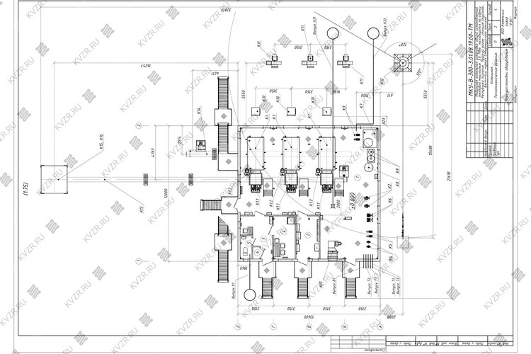
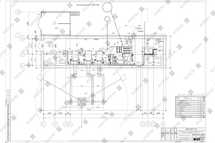
Тепломеханические решения механической котельной мощностью 3,0

Котельная предназначена для отопления, вентиляции и горячего водоснабжения строительной площадки.

Тепловая схема котельной

Котельная двухконтурная четырехтрубная с двумя независимыми контурами:

  • сеть отопления и вентиляции;
  • сеть горячего водоснабжения (ГВС).

Движение воды в сетевом контуре котельной осуществляется следующим образом:

  • вода сетевая обратная поступает из теплосети по трубопроводу Т2 через электромагнитный преобразователь расхода поз.16, фильтр сетчатый поз.16 на два циркуляционных насоса К2 сетевого контура (один насос резервный);
  • насосами К2 по трубопроводу Т2 вода подается в три котла К1, где нагревается до необходимой температуры;
  • вода по трубопроводу Т1 через электромагнитный преобразователь расхода поз.16 поступает в теплосеть на отопление;
  • часть воды из трубопровода Т1 отбирается на два теплообменника К6 горячего водоснабжения (ГВС) где охлаждаясь нагревает воду контура горячего водоснабжения (ГВС);
  • еще одна часть воды из трубопровода Т1 отбирается на собственные нужды отопления и теплоснабжения котельной;
  • возврат воды после теплообменников К6 и использования на собственные нужды отопления и теплоснабжения котельной возвращается в трубопровод Т2 перед насосами К2.

Так как котельная выполняет функции индивидуального теплового пункта (ИТП), количество тепла, поступающего в теплосеть на отопление, вентиляцию и горячее водоснабжение, регулируется количественно-качественным методом за счет изменения оператором уставки температуры измерителя регулятора в соответствии с отопительным графиком и изменения расхода теплоносителя путем автоматического управления работой циркуляционных насосов теплосети с поддержанием постоянной заданной температуры теплоносителя в подающем трубопроводе Т1.

Сетевой контур защищен от недопустимых изменений давления мембранно-предохранительными устройством К8, установленным на всасе насосов К2 и двумя предохранительными клапанами поз.10, установленными на общем трубопроводе Т1 за котлами для защиты котлов от превышения в них давления более, чем на 10% рабочего давления (свыше 6,6 кг/см2). На котлах в обход выходной арматуре установлена байпасная линия с обратным клапаном поз.31.

Для регулирования температуры теплоносителя поступающего из теплосети по трубопроводу Т2 в котлы К1, для нагрева воды на входе в котлы К1 и поддержания температуры воды выше минимально допустимой, трубопроводы Т1 и Т2 соединены байпасной линией через кран шаровый с электроприводом поз.8.

Движение воды в контуре ГВС котельной осуществляется следующим образом:

  • вода обратная из контура ГВС поступает по трубопроводу Т4 через электромагнитный преобразователь расхода поз.17 на два циркуляционных насоса К4 контура ГВС (один насос резервный);
  • насосами К4 по трубопроводу Т4 вода подается в теплообменники горячего водоснабжения (ГВС) К6, где нагревается до необходимой температуры;
  • вода по трубопроводу Т3 о теплообменников поступает в сеть горячего водоснабжения (ГВС) потребителю.

Для поддержания постоянного давления в контуре ГВС, на обратном трубопроводе Т4 перед насосами К4 установлен клапан регулятор давления перед собой поз.12.

Часть воды из трубопровода Т4 отбирается на собственные нужды ГВС.

Количество тепла поступающего в сеть ГВС, регулируется количественно-качественным методом за счет изменения расхода теплоносителя путем автоматического управлением работой циркуляционных насосов котлового контура с поддержанием постоянного давления трубопроводе Т3 и поддержанием постоянной температуры в трубопроводе Т3 путем управления подмеса воды в обход теплообменников К6 сразу на выход потребителю через смесительный клапан с электроприводом поз.21.

Исходная вода из хозяйственно питьевого водопровода В1 по трубопроводу подается в бак запаса воды К17. Из бака запаса вода поступает на подпитку сетевого контура.

Повышение давления подпиточной воды осуществляется с помощью двух насосов К3 (один насос резервный).

В подпитывающий трубопровод за насосами К3 подается реагент двумя дозирующими установками К9 для корректировки качества подпиточной и сетевой воды.

Поддержание требуемого давления сетевой воды осуществляется путем автоматического управления работой насосов К3. Схемой предусмотрена возможность подпитки сетевого контура без применения насосов К3 засечет давления воды в исходном трубопроводе В1.

Часть исходной воды по трубопроводу В1 подается на подпитку контура горячего водоснабжения (ГВС). Повышение давления подпиточной воды контура горячего водоснабжения (ГВС) осуществляется с помощью двух насосов К5 (один насос резервный). На подпитывающем трубопроводе перед насосами К5 установлен магнитный активатор поз.11 для магнитной обработки подпиточной воды. Схемой предусмотрена возможность подпитки контура горячего водоснабжения (ГВС) без применения насосов К5 засечет давления воды в исходном трубопроводе В1.

Часть воды из водопровода В1 отбирается на собственные нужды и подводится к сантехническим приборам, так же из трубопровода В1 производится отбор воды на гидроуборку котельного зала.

Описание и работа составных частей котельной

Дымовые газы от водогрейных котлов с механическими слоевыми топками с шурующей планкой движутся по дымоходу с шибером через золоуловитель в дымовую трубу.

Устройство и описание работы водогрейных котлов с механическими слоевыми топками с шурующей планкой КВм-1,0 КБ и комплектующего оборудования и приборов КИПиА приведены в соответствующих эксплуатационных документах на эти изделия.

Арматура, электрооборудование и электропроводка имеют маркировку, соответствующую условным обозначениям на схемах тепловой, принципиальной и электрической соединений.

Топливоподача

Подвоз топлива на склад котельной осуществляется автотранспортом.

Со склада топлива устройствами механизированной подачи (фронтальный погрузчик, тельфер с грейфером) уголь подается в бункер угля. Из бункера угля уголь подается в дробилку питатель ВДП-15 из которой подготовленный уголь подается на скребковый конвейер топливоподачи закрытого типа и далее распределяется по котлам посредством шиберов.

Для защиты конвейера топливоподачи от перегрузки, схема управления дробилкой и конвейером топливоподачи предусматривает блокировку работы и включения дробилки при выключенном конвейере топливоподачи. Так же схема управления конвейером топливоподачи позволят включение конвейера топливоподачи только если хотя бы один из шиберов топливоподачи одного из трех котлов открыт.

Для исключения пыления в зоне дробления, пересыпки и транспортировки угля, в качестве конвейера топливоподачи применяется скребковый конвейер закрытого типа.

Шлакозолоудаление

Удаление шлака и золы производится механически с применением скребкового конвейера ШЗУ закрытого типа. Сброс шлака в конвейер ШЗУ с слоевых решеток котлов производится вручную оператором путем поворота опрокидывающихся колосников, расположенных в хвостовой части топок котлов и предназначенных для накопления и охлаждения шлака перед сбросом в конвейер ШЗУ. Сброс шлака в конвейер ШЗУ производить только после предварительного включения конвейера ШЗУ. Транспортировка шлака конвейером ШЗУ производится в отвал на территории котельной. Сбор золы от циклонов производится в ручную. Зола от циклонов загружается в тачки и вывозится в отвал на территории котельной. Вывоз шлака и золы производится автотранспортом на золошлакоотвал для переработки и утилизации в соответствии с договором на утилизацию промышленных отходов.

Водоподготовка

В качестве исходной воды принята вода из хозяйственно питьевого водопровода.

Водоподготовка подпиточной воды производится посредством коррекционной обработки при помощи установок "Комплексон" К9, установленных на подпитывающей линии.

Автоматизация котельной

Настоящим проектом предусматривается оснащение котельной приборами и средствами автоматизации в объеме, достаточном для надежной и безаварийной эксплуатации. Проект выполнен в соответствии со СП 89.13330.2016 «СНиП II-35-76. Котельные установки» и СП 41-104-2000 «Проектирование автономных источников теплоснабжения».

Управление всеми группами насосов осуществляется в автоматическом режиме, дополнительно предусмотрено ручное управление подпиточными насосами теплосети и сети горячего водоснабжения (ГВС).

Схемой предусмотрена световая и звуковая сигнализация при повышении или понижении давления в обратном трубопроводе теплосети и аварийного отключения циркуляционных насосов теплосети, сети горячего водоснабжения (ГВС), подпиточных насосов теплосети и сети горячего водоснабжения (ГВС). Данный контроль осуществляется датчиками давления KPI-35 «Danfoss» и контроллерами САУ-У, ТРМ1, ТРМ500, 2ТРМ1.

Контроль за работой водогрейных котлов с механическими слоевыми топками с шурующей планкой осуществляется с помощью щитов управления котлами (ЩУКВТ №1, ЩУКВТ №2, ЩУКВТ №3), оснащенными микропроцессорными измерителями-регуляторами температуры ТРМ500 и реле времени AT8N.

Схема защиты водогрейных котлов с механическими слоевыми топками с шурующей планкой предусматривает автоматическое отключение тягодутьевых установок и автоматического управления подачей топлива (шурующей планки) при:

  • при повышении температуры воды на выходе из котла;
  • повышении или понижении давления воды на выходе из котла;
  • уменьшении расхода воды через котел;
  • уменьшении разрежения в топке;
  • неисправности цепей защиты.

При помощи микропроцессорных измерителей-регуляторов температуры ТРМ500 и реле времени AT8N производится контроль работы водогрейных котлов с механическими слоевыми топками с шурующей планкой, за счет управления работой дутьевого вентилятора и шурующей планки, посредством контроля выходной температуры теплоносителя и пуском планки через заданный временной интервал.

Контроль за давлением в котлах осуществляется электроконтактными манометрами.

В помещении котельной устанавливается сигнализатор СО для контроля уровня концентрации в помещении котельной угарного газа не выше 20 мг/м3.

В котельной на сетевом и подпиточном трубопроводе, трубопроводе горячего водоснабжения (ГВС) предусмотрена установка узлов контроля расхода, температуры и давления для осуществления учета теплопроизводительности котельной.

Остальные контрольно-измерительные приборы - показывающие.

Электропроводка выполняется кабелями ВВГнг, МКШвнг и МКЭШвнг, прокладываемыми в лотках и стальных трубах.

Заземление металлических корпусов приборов выполняется нулевым защитным проводником электрической сети.

Установка местных приборов и отборных устройств производится по существующим типовым инструкциям и монтажным чертежам.

Согласно технического задания котельная комплектуется пожарно-охранной сигнализацией, средствами связи и часами. В состав пожарно-охранной сигнализации входит система светозвукового оповещения персонала и блокировки приточной вентиляции, для подключения средств связи и часов в комнате персонала котельной предусмотрены розетки.

Документы завода
  • Сертификаты завода
  • Членство в СРО
  • Аттестованная технология сварки
  • Патенты на котельное оборудование
  • Товарные знаки
Смотреть все документы
Сертификат на водогрейные котлы на твердом и жидком топливе
Сертификат на водогрейные котлы на газе и жидком топливе
Сертификат на котлы отопительные паровые КП
Сертификат на топки
Сертификат на щиты управления
Сертификат на скиповые подъемники
Сертификат на золоуловители (циклоны)
Сертификат на конвейеры скребковые
Сертификат на дробилки
Сертификат на клапаны предохранительные
Сертификат на бункер-накопитель механизированный
Сертификат на автоматику газовых горелок
Сертификат о происхождении товара форма СТ-1
Членство в СРО
Членство в СРО
Аттестованная технология сварки
Свидетельство аттестованной технологии сварки
Патент на отопительный котел
Патент на водогрейный котел
Патент на топку водогрейного котла
Патент на водогрейный газовый котел
Патент на водогрейный котел
Патент на топочное устройство твердотопливного котла
Патент на водогрейный котел
HEATEXPERT товарный знак
KVZR товарный знак
STEAMEXPERT товарный знак
Тип здания
Регион
Населенный пункт
Вид топлива
Наружный объем здания (м3)
Отапливаемый подвал

Как подобрать мощность котла для вашего объекта

Подобрать мощность котла по площади важно учитывая не только площадь и объем здания, но и тип зданий и климатические данные региона.

На нашем сайте калькулятор расчета мощности котла учитывает тепло, требуемое на возмещение тепловых потерь через строительные конструкции и потери, вызываемые инфильтрацией (проникновением) наружного воздуха, через их неплотности и периодически открываемые двери.

Наружный строительный объем здания должен определяться умножением площади горизонтального сечения, взятого по внешнему обводу здания на уровне первого этажа на полную высоту здания, измеренную для панельных зданий: от уровня чистого пола (нулевой отметки) до верхней плоскости теплоизоляционного слоя чердачного покрытия, для остальных строений от уровня земли.

Расчетная температура воздуха в отапливаемых зданий принимается в зависимости от типа и назначения здания:

  • Гостиница, общежитие, административное здание, жилые дома + 20 °С;
  • Детские сады, ясли, поликлиники, амбулатории, диспансеры, больницы + 22 °С;
  • Высшие и средние специальные учебные заведения, общеобразовательные школы, школы интернаты, лаборатории, предприятия общественного питания, клубы, дома культуры + 16 °С;
  • Театры, магазины, пожарные депо + 15 °С;
  • Кинотеатры + 14 °С;
  • Гаражи + 10 °С;
  • Бани + 25 °С.

В случае если требуется отопление различных по типу зданий, теплопотребление каждого считается отдельно, полученные значения складываются и подобрать мощность котла нужно в соответствии с общей суммарной мощностью каждого отдельно стоящего задания.

Климатические условия вашего региона принимаются в соответствии с СП 131.13330 Строительная климатология. Данные по всем регионам России занесены в наш калькулятор расчета мощности котла.

Подобрать мощность котла по площади с учетом потребностей объекта в тепле на вентиляцию и горячую воду возможно только с более детальным расчетом. Его вы можете заказать в отделе сбыта котельного завода отправив заявку на электронный адрес sb@kvzr.ru или позвонив по телефонам (38-52) 29-97-41, 29-97-42.

background