Котлы мощностью 900 кВт на твердом топливе выполняются на различных видах топлива, в зависимости от этого имеют различное конструктивное исполнение и топочную камеру.
Котельный завод "РЭП" производит три вида котлов на твердом топливе:
Котлы твердотопливные выполняются в соответствии с ГОСТ 30735-1001 "Котлы отопительные водогрейные теплопроизводительностью от 0,1 до 4,0 МВт".
Водогрейные котлы на твердом топливе работают с принудительной циркуляцией в закрытых и открытых системах теплоснабжения.
Котлы 900 кВт твердотопливные имеют следующие технические характеристики:
Цена на котел на твердом топливе указана на нашем сайте. Отопительные котлоагрегаты мощностью до 1 МВт на твердом топливе на Котельном заводе всегда есть в наличии. Производство отопительных котлов под заказ завод осуществляет в течении 10-20 дней.
Отопительный котел на твердом топливе 900 кВт выполнен двухблочным - блок котла и колосниковая топка. Блок водогрейного промышленного котла представляет собой стальную сварную конструкцию, состоящую из стальной трубной системы (радиационной и конвективной поверхности нагрева), опорной рамы и каркаса с теплоизоляционными материалами, обшитого листовой сталью. На фронте котла устанавливается топочная дверка для загрузки топлива и выгрузки шлака. В модели твердотопливного котла с возможностью сжигания резервного топлива дров на фронте котла устанавливается 2 загрузочные дверки.
Блок водогрейного котла представляет собой сварную конструкцию, состоящую из трубной системы (радиационной и конвективной поверхности нагрева), опорной рамы и каркаса с теплоизоляционными материалами, обшитого листовой сталью. Стальные отопительные котлы имеют башенную сомкнутую компоновку. Топочная камера котлов состоит из труб Ø 32x3,0 мм. Топочная камера водогрейного котла выполнена газоплотной путем плавникового оребрения. Конвективная часть нагрева состоит из пакетов змеевиковой формы выполненных из труб Ø 32x3,0 мм, для интенсификации теплообмена трубы пакетов расположены в шахматном порядке. Это обеспечивает более интенсивное и полное омывание труб горячими газами. Газы в конвективной части проходят два хода и выходят через газоход в верхней части задней стенки котла.
Гидравлическая схема промышленного твердотопливного котла 900 кВт выполнена многоходовой, с множеством перегородок, для увеличения скорости воды в котле отопительном водогрейном и исключения застойных зон и локального перегрева поверхностей нагрева. Кроме того, турбулизация водяного потока препятствует образованию пристенного кипения и отложения накипи на поверхностях нагрева. Котлы работают с принудительной циркуляцией теплоносителя которую обеспечивают сетевые насосы.
Топочная камера промышленного котла 900 кВт выполнена газоплотной. Газоплотность котла обеспечивается путем варки стальной полосы в межтрубное пространство топочных панелей. Ширина газоплотной полосы рассчитывается таким образом, чтобы обеспечивать ее стабильное равномерное охлаждение и не допустить перегрев и порыв в процессе эксплуатации котла. Качество обварки газоплостности обеспечивает исключение присосов холодного воздуха в топочную камеру котла и исключает выбивание дымовых газов в котельный зал котельной.
Легкая изоляция стального котла выполнена съемной, облегченной из плит ПТЭ, плиты закрепляются на каркасе, обшивка выполняется из стальных листов. Преимущества легкой изоляции - максимальная монтажная готовность котельного блока, его компактность, минимизация потерь КПД котла через потери тепла q5 в окружающую среду, за счет высокого качества обмуровки.
По желанию заказчика возможно исполнение котельного блока под кирпичную обмуровку, без обшивки и изоляции. Но на сегодня такие модели котлов практически не пользуются спросом у заказчиков ввиду больших по сравнению с легкой обмуровкой стоимости и срока монтажных работ.
Газы в конвективной части котла 900 кВт на твердом топливе проходят два хода и выходят через газоход в верхней части задней стенки котла. В случае установки котла в уже существующей котельной с газоходами расположенными снизу котельной, возможно изготовление опускного газохода вдоль задней стенки котла и вывод газов вниз. Для очистки конвективных поверхностей нагрева от сажи и золы в обшивке котла предусмотрены удобные люки. В нижней части стального отопительного котла находятся два зольных бункера, под топкой и под конвективной поверхностью нагрева. В бункерах предусмотрен лаз для очистки от зольных отложений и осмотра труб конвективного пакета.
Котел производственный на угле работает с уравновешенной тягой, которую обеспечивает дымосос ДН. Вентилятор поддува в котле не нужен.
Для того чтобы купить котел 900 кВт на твердом топливе, вы можете сделать заявку в отдел сбыта по телефону (38-52) 29-97-41 (42), либо оформить заявку онлайн. Наши менеджеры дадут консультацию по подбору вспомогательного оборудования для выбранных вами моделей и рассчитают стоимость доставки до вашего региона и населенного пункта. Также предлагаем вам выполнить проект реконструкции котельной. Завод осуществляет производство котлов на угле по типовым проектам с различными видами топочных устройств - топка ОУР либо колосниковая решетка и по техническому заданию, согласованному с заказчиком производим доработки котла под вашу котельную: зеркальное отображение подвода теплоносителя, изготавливаем опускные газоходы, делаем дополнительные топочные дверки и подобное.
Котел на твердом топливе 900 кВт для отопления поставляется готовым блоком в обшивке с чугунной топочной дверкой, с зольником и комплектом колосников, либо топкой РВР. С котлом поставляется паспорт и инструкция по эксплуатации водогрейного котла.
По запросу поставляется комплект обязательной арматуры, КИП и ДВ: затворы дисковые - 2 шт., запорные вентили - комплект, предохранительные клапаны - 2 шт., термометры с оправой - 2 шт., манометры с кранами - 2 шт., дутьевой вентилятор - 1 шт. Котел 900 кВт работает без вентилятора.
Кроме того теплоагрегаты могут быть выполнены в двух вариантах изоляции: блок котла в обшивке и изоляции; блок котла (без обшивки и изоляции, под тяжелую обмуровку).
Автоматика котла на твердом топливе подбирается по техзаданию.
Теплогенератор работает с ДН 3,5 с дв. 3,0/1500 при сжигании каменного и бурого угля, но без дутьевого вентилятора. При установке дымососа на группу котлов, дымосос подбирается индивидуально согласно опросному листу.
Для обеспечения циркуляции воды через котел 900 кВт на твердом топливе либо группу котлов применяется циркуляционный насос, для подпитки котла применяется подпиточный насос.
Дымовая труба подбирается по техзаданию, на котел или группу котлов.
Цена водогрейного котла 900 кВт твердотопливного включает в себя запорную арматуру и КИП в пределах котла, вентилятор поддува и предохранительные клапаны. Ниже приведена подробная информация.
Для эффективной и надежной работы котла 900 кВт твердотопливного вам потребуется дополнительное оборудование - автоматика, дымосос, золоуловитель, насос сетевой и подпиточный, газоходы и переходники для газового тракта, дымовая труба. Мы предлагаем рассмотреть типовые варианты комплектации.
В случае если у вас на объекте имеется насосное и тягодутьевое оборудование, мы можем проверить совместимость котла 900 кВт твердотопливного нашего производства и вашего оборудования.
Можем изготовить нестандартные узлы для выполнения быстрого монтажа котла - газоходы и узлы обвязки.
Типовую схему монтажа котла вы можете посмотреть во вкладке схемы подключения.
Щит водогрейного котла обеспечивает:
Щит водогрейного котла показывает:
Щит водогрейного котла автоматическую остановку с индикацией причины аварии при:
Элементы для управления вентилятором устанавливаются в щите управления котлом.
Элементы управления дымососом и насосом устанавливаются в электросиловом щите котельной.
Автоматика водогрейного котла обеспечивает:
Автоматика водогрейного котла показывает:
Автоматика водогрейного котла осуществляет автоматическую остановку с индикацией причины аварии при:
Элементы для управления вентилятора и дымососом устанавливаются в блоке управления котлом.
Элементы управления насосом устанавливаются в общекотельном щите.
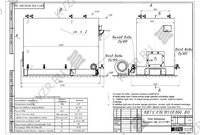
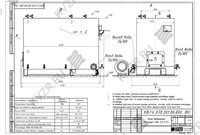
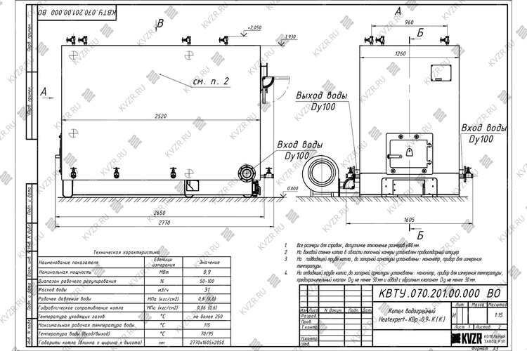
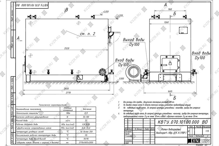
Водогрейный твердотопливный стальной отопительный котел 900 кВт твердотопливный, предназначен для получения горячей воды номинальной температурой на выходе из котла от 95 до 115 °С рабочим давлением до 0,6 (6,0) МПа (кгс/см), используемой в системах централизованного теплоснабжения на нужды отопления, горячего водоснабжения. Устанавливается в производственных, промышленных и отопительных котельных.
Для правильного подключения котла 900 кВт твердотопливного в котельной необходимо оставить проемы для обслуживания оборудования во время эксплуатации. Эти расстояния рекомендованы СНИП II-35-76. На данной схеме представлены их размеры. Кроме того мы составили примерный план, как можно произвести расположение подключение оборудования, а также указали перечень минимально необходимого вспомогательного оборудования для работы котла. К вспомогательному оборудованию при работе котла относятся - щит управления котлом, насос циркуляционный, насос подпиточной воды, бак запаса воды, расширительный мембранный бак, дымовая труба и дымосос, золоуловитель (по желанию). 
В случае если подпиточная вода не соответствует по своим характеристикам требованиям к питательной воде, необходимо предусмотреть систему водоподготовки котловой воды. 
Для котельных 1 категории, являющиеся единственным источником тепла системы теплоснабжения и обеспечивающие потребителей первой категории, не имеющих индивидуальных резервных источников тепла, необходимо предусмотреть полное резервирование оборудования - котлов, насосов, ТДМ. Пунктиром обозначено оборудование для резервирования. 
Для котельных 2 категории, включающие в себя промышленные и производственные котельные резервирование нужно предусматривать по необходимости.
Образец тепловой схемы подключения оборудования в котельной приведен на данной схеме. При эксплуатации очень важно грамотно осуществить подключение оборудования, установить все контрольно измерительные приборы, для контроля параметров работы котельной и запорную арматуру для оперативного переключения потока теплоносителя при плановой или аварийной остановке оборудования. Данную схему можно использовать как пример для разработки под свой объект или заказать у нас разработку индивидуальной схемы для вашей котельной.
Воздух в водогрейный котел подается вентилятором поддува через топочный короб под слой твердого топлива для обеспечения горения. На боковой панели топки котла имеется пробоотборочный штуцер для подключения манометра и тягонапорометра.
Автоматика котла 900 кВт твердотопливного по данным тягонапорометра производит контроль разряжения в топочной камере, блокируя работу вентилятора в случае снижения разряжения в топочной камере, и исключая выбивание дымовых газов из топки в котельный зал. Из топки дымовые газы поступают в первый конвективный пакет, разворачиваются в поворотном коробе и через второй конвективный пакет выходят в газоходы котельной.
Для ручной регулировки тяги и дутья и режимов горения в комплекте котла предусмотрены шиберы. Шибер на воздуховоде подачи в топочный короб регулирует количество воздуха подаваемого вентилятором. Шибер на выходе из котла позволяет произвести отключение котла от общей магистрали газоходов котельной, а также регулировку тяги создаваемой дымососом.
Если вам не требуется высокая очистка дымовых газов, котел может работать без золоуловителя. Схема подключения при этом следующая - дымовые газы выходят из котла в газоходы котельной, затем в дымосос и далее снова по газоходам в дымовую трубу. В зависимости от компоновки котельной дымосос может устанавливаться как в котельной, так и на улице. Наш завод производит газоходы и переходники к ним. Получив схему вашей котельной мы можем изготовить для вас комплект газоходов, переходников нужных размеров и сечений. На месте такие детали собираются как конструктор. Обращаем ваше внимание, что газоходы требуют изоляции, для защиты персонала от ожогов, так как уходящие газы имеют высокую температуру, а на улице газоходы требуют изоляции для избежания образования конденсата.
Если вы хотите купить котел 900 кВт твердотопливный работающий без дымососа, ознакомится и подобрать модели таких котлов вы можете по ссылке.
Золоуловитель для твердотопливного котла 900 кВт твердотопливного обычно требуется устанавливать в котельных расположенных в жилой зоне. Они позволяют произвести дополнительную очистку дымовых газов перед их выбросом в атмосферу. Золоуловители нашего завода могут устанавливаться как сразу за котлом, так и снаружи котельной. Кроме очистки воздуха золоуловители увеличивают сопротивление в газовом тракте, поэтому при их установке требуется дымосос большей мощности.
При монтаже котла 900 кВт твердотопливного на участке водоподводящего трубопровода после задвижки, непосредственно перед входом во входной и на выходном трубопроводах устанавливаются по одному манометру и термометру. На входе или выходе из котла устанавливается устройство контроля расхода теплоносителя (реле протока). Кроме того, на выходном трубопроводе устанавливаются не менее двух предохранительных клапанов - один рабочий, второй резервный.
Все приборы, кроме реле протока входят в комплектацию котла. Реле протока входит в комплектацию щита управления данного котла, щит покупается отдельно.
Водогрейный котел 900 кВт твердотопливный имеет гарантийный срок 24 месяца и срок работы при соблюдении правил монтажа и эксплуатации оборудования 10 лет.

Отзыв о работе котла КВр производства Котельный завод "РЭП", проработавшего на АО "Водоканал" г. Белокуриха 10 лет. Интервью предоставил заместитель главного директора по производству Суходоев Сергей Николаевич.

Интервью с главным энергетиком базового комплекса "Сводор" г. Барнаул о работе водогрейного котла нашего производства, отапливающего предприятие с 2008 года.
Котел 900 кВт на твердом топливе используется для отопления производственных, административных и жилых зданий. Котельный завод производит и поставляет весь перечень сопутствующего котельного оборудования- насосы, газоходы, автоматику, дымососы, дымовые трубы, циклоны и прочее. Специалисты нашего завода бесплатно подберут сопутствующее оборудование, а в случае необходимости, выполнят проектирование, монтаж и пуско-наладку котельной установки.
Подобрать мощность котла по площади важно учитывая не только площадь и объем здания, но и тип зданий и климатические данные региона.
На нашем сайте калькулятор расчета мощности котла учитывает тепло, требуемое на возмещение тепловых потерь через строительные конструкции и потери, вызываемые инфильтрацией (проникновением) наружного воздуха, через их неплотности и периодически открываемые двери.
Наружный строительный объем здания должен определяться умножением площади горизонтального сечения, взятого по внешнему обводу здания на уровне первого этажа на полную высоту здания, измеренную для панельных зданий: от уровня чистого пола (нулевой отметки) до верхней плоскости теплоизоляционного слоя чердачного покрытия, для остальных строений от уровня земли.
Расчетная температура воздуха в отапливаемых зданий принимается в зависимости от типа и назначения здания:
В случае если требуется отопление различных по типу зданий, теплопотребление каждого считается отдельно, полученные значения складываются и подобрать мощность котла нужно в соответствии с общей суммарной мощностью каждого отдельно стоящего задания.
Климатические условия вашего региона принимаются в соответствии с СП 131.13330 Строительная климатология. Данные по всем регионам России занесены в наш калькулятор расчета мощности котла.
Подобрать мощность котла по площади с учетом потребностей объекта в тепле на вентиляцию и горячую воду возможно только с более детальным расчетом. Его вы можете заказать в отделе сбыта котельного завода отправив заявку на электронный адрес sb@kvzr.ru или позвонив по телефонам (38-52) 29-97-41, 29-97-42.
Надзор за соблюдением требований ПТЭТЭ в организациях независимо от форм собственности и ведомственной принадлежности осуществляют органы государственного энергетического надзора. п 1.6. ПТЭТЭ. За несоблюдение ПТЭТЭ Ростехнадзор привлекает организации к ответсвенности по следующим статьям КоАП:
КоАП РФ Статья 9.9. Ввод в эксплуатацию топливо- и энергопотребляющих объектов без разрешения соответствующих органов осуществляющих государственный надзор на указанных объектах,
Также есть еще Статья 9.11. КоАП РФ, которая предусматривает аналогичную ответственность за несоблюдение ПТЭТЭ во время эксплуатации.
Статья 9.11. Нарушение правил пользования топливом и энергией, правил устройства, эксплуатации топливо- и энергопотребляющих установок, тепловых сетей, объектов хранения, содержания, реализации и транспортировки энергоносителей, топлива и продуктов его переработки
Водогрейные и паровые котельные, в том числе блочно модульные котельные установки эксплуатируются в соответствии с "Правилами технической эксплуатации тепловых энергоустановок" Утвержденными приказом №115 от 24 марта 2003 г. (Далее ПТЭТЭ)
ПТЭТЭ распространяются на:
Согласно ПТЭТЭ:
2.4.1. Новые или реконструированные тепловые энергоустановки принимаются в эксплуатацию в порядке, установленном ПТЭТЭ.
2.4.11. Включение в работу тепловых энергоустановок производится после их допуска в эксплуатацию.
2.4.2. Допуск в эксплуатацию новых и реконструированных тепловых энергоустановок осуществляют органы государственного энергетического надзора на основании действующих нормативно-технических документов.
Таким образом, исходя из приведенных норм, запрещается производить подключение объектов к сетям инженерно-технического обеспечения и осуществлять подачу коммунальных ресурсов без допуска в эксплуатацию тепловых энергоустановок органами энергетического надзора.
Порядок организации работ по выдаче разрешений на допуск в эксплуатацию энергоустановок и тепловых сетей (далее – Порядок) установлен приказом Федеральной службы по экологическому, технологическому и атомному надзору от 7 апреля 2008 г. № 212, зарегистрирован в Минюсте РФ 28 апреля 2008 г. № 11597 (РД 12-08-2008).
Вышеперечисленный документ не содержат требований о минимальной или максимальной нагрузке теплового пункта, при которой необходимо получать разрешение на допуск в эксплуатацию, соответственно необходимо получать разрешение на допуск в эксплуатацию новых или реконструированных тепловых энергоустановок, вне зависимости от их тепловой нагрузки.
1.1. Гидравлическому испытанию подлежат все новые или реконструированные тепловые энергоустановки после завершения монтажных работ.
1.2. Опрессовка и гидравлическое испытание котлов проводится давлением не менее 1,25 Рраб.
1.3. Опрессовка и гидравлическое испытание котлов проводиться водой температурой не ниже 5 ⁰С и не выше 40 ⁰С. Применение холодной воды (5-15 ⁰С) для испытаний может вызывать выпадения влаги на поверхностях объекта испытаний. Применение воды температуры выше 40 ⁰С может быть травмоопасно. Используемая для гидравлического испытания вода не должна загрязнять объект или вызывать интенсивную коррозию.
1.4. Проведение гидравлических испытаний котлов на плотность проводятся в следующем порядке:
Давление воды при испытании контролируется по манометрам, установленными на подводящем и отводящем трубопроводах котла согласно приложению А.
1.5. Контролируемые параметры при гидравлических испытаниях:
В случае выявления падения давления согласно показаниям манометров, проводиться визуальный контроль.
Манометры и показывающие приборы, должны быть установлены согласно схеме.
Акт гидравлического испытания котлов образец | |
| № | «___» ________ 20___ г. | 
| Начальник производства | фамилия, инициалы | 
| Мастер смены | фамилия, инициалы | 
| Работник, проводивший испытания | фамилия, инициалы | 
| Произвели осмотр и проверку качества сборки | наименование изделия, заводской номер | 
| и составили акт о нижеследующем: | |
| 1. Сборка | наименование изделия, вид проектной, технологической документации | 
| 2. В процессе сборки внесены следующие отступления от технической документации | перечень отступлений | 
| согласованные | должность, фамилия, инициалы | 
| 3. Котел испытан гидростатическим методом пробным давлением | _____МПа (_____кгс/см2) в течении _______мин. | 
| 4. В течение времени нахождения под пробным давлением падение давления | наблюдалось или не наблюдалось | 
| 5. В течение времени нахождения под максимальным рабочим давлением ___МПа (___кгс/см2) | отсутствие или наличие дефектов | 
| Принято решение: | |
| Котел (признается или не признается) выдержавшим испытание гидростатическим методом. | |
| Начальник производства | фамилия, инициалы, подпись | 
| Мастер смены | фамилия, инициалы, подпись | 
| Работник, проводивший испытания | фамилия, инициалы, подпись | 
Акт гидравлического испытания котлов образец (скачать в Word)
Акт гидравлического испытания котлов образец (скачать в pdf)