Надежный и эффективный промышленный котел КВЖ 1.1 мощностью 1,1 МВт /1100 кВт на жидком топливе, предназначен для стабильного отопления и горячего водоснабжения и вентиляции производственных, коммерческих и жилищно-коммунальных объектов площадью до 12100 м², температурой теплоносителя на выходе 95 - 115 °С, рабочим давлением 1,1 - 1,1 кгс/см (3,0 - 6,0) МПа.
Водотрубная конструкция с продуманной многоходовой схемой движения газов и теплоносителя обеспечивает высокий КПД, долговечность и простоту в эксплуатации.
Котел совместим с широкой номенклатурой жидкотопливных блочных горелок
Жидкотопливный котел КВЖ 1.1 МВт - оборудование для специалистов, выбирающих надежность и экономичность, а не просто оборудование.
Водотрубный котел КВЖ 1.1 МВт — это не эволюция двухходовых жаротрубных моделей, а принципиально иная конструкция, разработанная для устранения их ключевых слабых мест: низкой надежности, высоких эксплуатационных расходов и рисков.
1. Конструкция трубной системы "труба-коллектор" вместо "труба-трубная решетка".
Конструктивное решение: Отсутствие массивных трубных досок. Все соединения — это трубы, вваренные в коллекторы, которые охлаждаются теплоносителем.
Преимущества:
2. Развитый конвективный пучок с противотоком и шахматным расположением труб.
Конструктивное решение: Дымовые газы совершают три хода, поперечно омывая конвективные трубы, расположенные в шахматном порядке. Движение воды организовано по принципу противотока.
Преимущества:
3. Принудительная высокая скорость теплоносителя в малом контуре.
Конструктивное решение: Малый водяной объем и конструкция коллекторов с перегородками обеспечивают высокую скорость воды в трубах.
Преимущества:
4. Фундаментальное преимущество безопасности.
Конструктивное решение: Малый водяной объем исключают накопление значительной энергии.
Преимущества:
Сравнение водотрубных и жаротрубных жидкотопливных котлов:
| Параметр | Водотрубный котел КВЖ 1.1 | Типовой жаротрубный котел КВЖ 1.1 | Преимущества | 
|---|---|---|---|
| КПД | До 93% (газоплотность, 3 хода) | 88 - 91% | Экономия 3 - 5% на топливе | 
| Ресурс теплообменника | Выше (отсутствие термических напряжений) | Ограничен циклическими нагрузками | Меньше простоев и затрат на замену | 
| Требования к воде | Ниже (высокая скорость потока) | Высокие (риск застоя и накипи) | Снижение расходов на химводоподготовку | 
| Риск аварии | Минимальный (малый объем/давление) | Повышенный (большой объем) | Взрывобезопасность | 
Промышленный жидкотопливный котел КВ Ж-1.1 -115 (95) ТЖ идеально подходит для автономного отопления и ГВС и вентиляции различных объектов:
Мы осуществляем отгрузку жидкотопливных котлов КВЖ-1.1 МВт автотранспортом и железнодорожными перевозчиками в любую точку России и стран СНГ. Каждый котел КВЖ 1,1 надежно упаковывается и крепится для безопасной транспортировки.
Чтобы купить промышленный жидкотопливный котел КВЖ-1.1 ЛЖ и получить комплексное решение для вашей котельной, свяжитесь с нами любым удобным способом:
Позвоните в отдел сбыта:
+ 8-800-700-17-43
+7 (3852) 29-97-41 (многоканальный)
Напишите в отдел сбыта:
SB@KVZR.RU
Отправьте онлайн-заявку на коммерческое предложение через сайт.
Наши специалисты помогут вам:
Котельный завод «РЭП» изготавливает жидкотопливные котлы КВЖ-1.1 не только по типовым проектам, но и по техническому заданию заказчика.
Мы можем реализовать для вас:
Вся наша продукция соответствует самым строгим стандартам качества и безопасности.
Производство по ГОСТ: Промышленные жидкотопливные котлы КВЖ-1,1 изготавливаются по ТУ в соответствии с требованиями ГОСТ 30735-11001.
Полная сертификация: Оборудование имеет все необходимые сертификаты соответствия Техническим регламентам Таможенного союза:
Цена водогрейного котла КВЖ 1.1 МВт житкотопливного (под отечественную горелку РМГ) включает в себя запорную арматуру и КИП в пределах котла, вентилятор поддува и предохранительные клапаны. Ниже приведена подробная информация.
Для эффективной и надежной работы котла КВЖ 1.1 МВт житкотопливного (под отечественную горелку РМГ) вам потребуется дополнительное оборудование - горелка, автоматика, насос сетевой и подпиточный, газоходы и переходники для газового тракта, дымовая труба. Мы предлагаем рассмотреть типовые варианты комплектации.
В случае если у вас на объекте имеется горелка и насосное оборудование, мы можем проверить совместимость котла КВЖ 1.1 МВт житкотопливного (под отечественную горелку РМГ) нашего производства и вашего оборудования.
Можем изготовить нестандартные узлы для выполнения быстрого монтажа котла - газоходы и узлы обвязки.
Типовую схему монтажа котла вы можете посмотреть во вкладке схемы подключения.
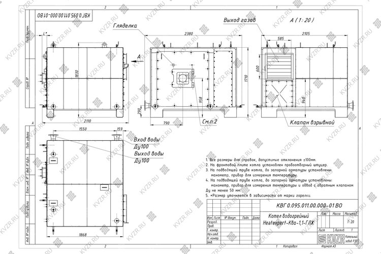
Водогрейный стальной отопительный котел КВЖ 1.1 МВт жидкотопливный (под отечественную горелку РМГ), предназначен для получения горячей воды номинальной температурой на выходе из котла от 95 до 115 °С рабочим давлением до 0,6 (6,0) МПа (кгс/см), используемой в системах централизованного теплоснабжения на нужды отопления, горячего водоснабжения. Устанавливается в производственных, промышленных и отопительных котельных.
Водогрейный котел КВЖ 1.1 МВт жидкотопливный (под отечественную горелку РМГ) имеет гарантийный срок 24 месяца и срок работы при соблюдении правил монтажа и эксплуатации оборудования 10 лет.
 
 
Отзыва о товаре пока нет, будьте первыми!
Жидкотопливный водогрейный котел 1.1 ( - мощность 1.1 МВт; - топливо дизель; - температура 95 115 градусов; - отапливаемая площадь* от 8500 до 12100 м2; - отапливаемый объем* от 25500 до 36300 м3 (* диапазон для самого холодного и самого теплого региона РФ)); - применение для отопления производства, жилых зданий, цехов, складов, промышленных предприятий, теплиц, гаражей, больниц, школ, садов, для монтажа в модульных котельных.
Подобрать мощность котла по площади важно учитывая не только площадь и объем здания, но и тип зданий и климатические данные региона.
На нашем сайте калькулятор расчета мощности котла учитывает тепло, требуемое на возмещение тепловых потерь через строительные конструкции и потери, вызываемые инфильтрацией (проникновением) наружного воздуха, через их неплотности и периодически открываемые двери.
Наружный строительный объем здания должен определяться умножением площади горизонтального сечения, взятого по внешнему обводу здания на уровне первого этажа на полную высоту здания, измеренную для панельных зданий: от уровня чистого пола (нулевой отметки) до верхней плоскости теплоизоляционного слоя чердачного покрытия, для остальных строений от уровня земли.
Расчетная температура воздуха в отапливаемых зданий принимается в зависимости от типа и назначения здания:
В случае если требуется отопление различных по типу зданий, теплопотребление каждого считается отдельно, полученные значения складываются и подобрать мощность котла нужно в соответствии с общей суммарной мощностью каждого отдельно стоящего задания.
Климатические условия вашего региона принимаются в соответствии с СП 131.13330 Строительная климатология. Данные по всем регионам России занесены в наш калькулятор расчета мощности котла.
Подобрать мощность котла по площади с учетом потребностей объекта в тепле на вентиляцию и горячую воду возможно только с более детальным расчетом. Его вы можете заказать в отделе сбыта котельного завода отправив заявку на электронный адрес sb@kvzr.ru или позвонив по телефонам (38-52) 29-97-41, 29-97-42.
