Надежный и эффективный промышленный котел КВГ 1.1 мощностью 1,1 МВт /1100 кВт на природном и сжиженном газе, предназначен для стабильного отопления и горячего водоснабжения и вентиляции производственных, коммерческих и жилищно-коммунальных объектов площадью до 12100 м², температурой теплоносителя на выходе 95 - 115 °С, рабочим давлением 1,1 - 1,1 кгс/см (3,0 - 6,0) МПа.
Водотрубная конструкция с продуманной многоходовой схемой движения газов и теплоносителя обеспечивает высокий КПД, долговечность и простоту в эксплуатации.
Котел совместим с широкой номенклатурой газовых блочных горелок
Газовый котел КВГ 1.1 МВт - оборудование для специалистов, выбирающих надежность и экономичность, а не просто оборудование.
Водотрубный котел КВГ 1.1 МВт — это не эволюция двухходовых жаротрубных моделей, а принципиально иная конструкция, разработанная для устранения их ключевых слабых мест: низкой надежности, высоких эксплуатационных расходов и рисков.
1. Конструкция трубной системы "труба-коллектор" вместо "труба-трубная решетка".
Конструктивное решение: Отсутствие массивных трубных досок. Все соединения — это трубы, вваренные в коллекторы, которые охлаждаются теплоносителем.
Преимущества:
2. Развитый конвективный пучок с противотоком и шахматным расположением труб.
Конструктивное решение: Дымовые газы совершают три хода, поперечно омывая конвективные трубы, расположенные в шахматном порядке. Движение воды организовано по принципу противотока.
Преимущества:
3. Принудительная высокая скорость теплоносителя в малом контуре.
Конструктивное решение: Малый водяной объем и конструкция коллекторов с перегородками обеспечивают высокую скорость воды в трубах.
Преимущества:
4. Фундаментальное преимущество безопасности.
Конструктивное решение: Малый водяной объем исключают накопление значительной энергии.
Преимущества:
Сравнение водотрубного и жаротрубного котла КВГ:
| Параметр | Водотрубный котел КВГ 1.1 | Типовой жаротрубный котел КВГ 1.1 | Преимущества | 
|---|---|---|---|
| КПД | До 93% (газоплотность, 3 хода) | 88 - 91% | Экономия 3 - 5% на топливе | 
| Ресурс теплообменника | Выше (отсутствие термических напряжений) | Ограничен циклическими нагрузками | Меньше простоев и затрат на замену | 
| Требования к воде | Ниже (высокая скорость потока) | Высокие (риск застоя и накипи) | Снижение расходов на химводоподготовку | 
| Риск аварии | Минимальный (малый объем/давление) | Повышенный (большой объем) | Взрывобезопасность | 
Промышленный твердотопливный котел КВ Г-1.1 -115 (95) КБ идеально подходит для автономного отопления и ГВС и вентиляции различных объектов:
Мы осуществляем отгрузку котлов КСВГ-1.1 МВт автотранспортом и железнодорожными перевозчиками в любую точку России и стран СНГ. Каждый котел КВГн 1,1 надежно упаковывается и крепится для безопасной транспортировки.
Чтобы купить промышленный водогрейный котел КВГ-1.1 ГН/ГС и получить комплексное решение для вашей котельной, свяжитесь с нами любым удобным способом:
Позвоните в отдел сбыта:
+ 8-800-1100-17-43
+7 (3852) 29-97-41 (многоканальный)
Напишите в отдел сбыта:
SB@KVZR.RU
Отправьте онлайн-заявку на коммерческое предложение через сайт.
Наши специалисты помогут вам:
Котельный завод «РЭП» изготавливает котлы КВГ-1.1 не только по типовым проектам, но и по техническому заданию заказчика.
Мы можем реализовать для вас:
Вся наша продукция соответствует самым строгим стандартам качества и безопасности.
Цена водогрейного котла КВГ 1.1 МВт газового (под отечественную горелку ГГ и ГБЛ) включает в себя запорную арматуру и КИП в пределах котла, вентилятор поддува и предохранительные клапаны. Ниже приведена подробная информация.
Для эффективной и надежной работы котла КВГ 1.1 МВт газового (под отечественную горелку ГГ и ГБЛ) вам потребуется дополнительное оборудование - горелка, автоматика, насос сетевой и подпиточный, газоходы и переходники для газового тракта, дымовая труба. Мы предлагаем рассмотреть типовые варианты комплектации.
В случае если у вас на объекте имеется горелка и насосное оборудование, мы можем проверить совместимость котла КВГ 1.1 МВт газового (под отечественную горелку ГГ и ГБЛ) нашего производства и вашего оборудования.
Можем изготовить нестандартные узлы для выполнения быстрого монтажа котла - газоходы и узлы обвязки.
Типовую схему монтажа котла вы можете посмотреть во вкладке схемы подключения.
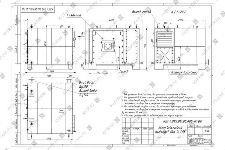
Водогрейный стальной отопительный котел КВГ 1.1 МВт газовый (под отечественную горелку ГГ и ГБЛ), предназначен для получения горячей воды номинальной температурой на выходе из котла от 95 до 115 °С рабочим давлением до 0,6 (6,0) МПа (кгс/см), используемой в системах централизованного теплоснабжения на нужды отопления, горячего водоснабжения. Устанавливается в производственных, промышленных и отопительных котельных.
Водогрейный котел КВГ 1.1 МВт газовый (под отечественную горелку ГГ и ГБЛ) имеет гарантийный срок 24 месяца и срок работы при соблюдении правил монтажа и эксплуатации оборудования 10 лет.
 
 
Отзыва о товаре пока нет, будьте первыми!
Водогрейные котлы, мощностью от 175 КВт до 4 МВт используются для отопления производственных, административных и жилых зданий. Котельный завод производит и поставляет весь перечень сопутствующего котельного оборудования- насосы, газоходы, автоматику, дымососы, дымовые трубы, циклоны и прочее. Специалисты нашего завода бесплатно подберут сопутствующее оборудование, а в случае необходимости, выполнят проектирование, монтаж и пуско-наладку котельной установки.
Подобрать мощность котла по площади важно учитывая не только площадь и объем здания, но и тип зданий и климатические данные региона.
На нашем сайте калькулятор расчета мощности котла учитывает тепло, требуемое на возмещение тепловых потерь через строительные конструкции и потери, вызываемые инфильтрацией (проникновением) наружного воздуха, через их неплотности и периодически открываемые двери.
Наружный строительный объем здания должен определяться умножением площади горизонтального сечения, взятого по внешнему обводу здания на уровне первого этажа на полную высоту здания, измеренную для панельных зданий: от уровня чистого пола (нулевой отметки) до верхней плоскости теплоизоляционного слоя чердачного покрытия, для остальных строений от уровня земли.
Расчетная температура воздуха в отапливаемых зданий принимается в зависимости от типа и назначения здания:
В случае если требуется отопление различных по типу зданий, теплопотребление каждого считается отдельно, полученные значения складываются и подобрать мощность котла нужно в соответствии с общей суммарной мощностью каждого отдельно стоящего задания.
Климатические условия вашего региона принимаются в соответствии с СП 131.13330 Строительная климатология. Данные по всем регионам России занесены в наш калькулятор расчета мощности котла.
Подобрать мощность котла по площади с учетом потребностей объекта в тепле на вентиляцию и горячую воду возможно только с более детальным расчетом. Его вы можете заказать в отделе сбыта котельного завода отправив заявку на электронный адрес sb@kvzr.ru или позвонив по телефонам (38-52) 29-97-41, 29-97-42.
